おすすめ売買物件

【 マンション 】朝霞台駅徒歩17分★新規リフォーム済★2路線2駅利用可★収納充実★ペット飼育可◎

最寄駅所在地面積築年月価格間取り

東武東上線 朝霞台駅 徒歩 17分

埼玉県朝霞市泉水3丁目

専有面積/73.71㎡

バルコニー面積/11.34㎡

2015年02月 3,880万円 3 LDK

朝霞台駅徒歩17分★新規リフォーム済★2路線2駅利用可★収納充実★ペット飼育可◎

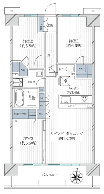
物件写真・間取り

全134戸
3LDK+2WIC:73.71㎡
リビングダイニング:12.2帖
システムキッチン
洗面化粧台
南向きバルコニー

物件概要

物件名

アドグランデ朝霞台ブライトステージ

交通機関

東武東上線 朝霞台駅 徒歩 17分

JR武蔵野線 北朝霞駅 徒歩 18分

所在地

埼玉県朝霞市泉水3丁目

価格

3,880万円

間取り 3 LDK
土地権利 所有権
専有面積

73.71㎡

バルコニー面積

11.34㎡

建物構造 RC
階 / 階数

4階/9階建

築年月

2015年02月

駐車場 空無 :月額5,000~11,000円
現況
管理費

10,400円

修繕積立金

12,540円

引渡し 相談
設備エレベーター オートロック TVモニターホン バルコニー システムキッチン 浄水器 カウンターキッチン ユニットバス 浴室乾燥機 給湯 温水洗浄便座 洗面化粧台 クローゼット WIC 室内洗濯機置場 ペット飼育可(細則有)
備考◇管理会社:株式会社長谷工コミュニティ(全部委託・日勤管理)
◇給湯器リース料:月額2,170円
◇ネット利用料:月額880円
◇駐輪場:空有/月額150~250円
◇バイク置場:空有/月額2,000円
◇2025年12月下旬:新規室内リフォーム完了

◆朝霞第十小学校まで約1,000m
◆朝霞第三中学校まで約1,300m
◆泉水保育園まで約350m
◆セブイレブンまで約240m
◆オリンピック朝霞泉水店まで約270m
取引態様 媒介
物件番号130599
情報登録日2026年03月09日
情報更新日2026年03月09日

物件地図人型アイコンを地図上にドラッグするとストリートビューで表示されます。

アドグランデ朝霞台ブライトステージ

埼玉県朝霞市泉水3丁目

地図を戻す

資料請求・お問い合わせ

お問い合わせ内容
物件名/物件番号 【130599】 アドグランデ朝霞台ブライトステージ
お名前
電話番号
ご住所
郵便番号を調べる



メールアドレス
確認のため同じアドレスをご入力ください。
備考欄ご希望の連絡方法、見学希望日、希望条件、質問などがございましたら、ご記入ください
会社案内
エイトホーム外観

★エイトホーム★

 埼玉県志木市本町6丁目24番30号

メールフォームはこちら

弊社は東武東上線沿線の不動産を中心に幅広く取扱っております。お忙しいお客様はメールやお電話でのご相談も大歓迎です。